中文
|
EN
|
繁体
国机集团网站群
首页
HTH华体会体育登录入口hth.com
新闻中心
业务领域
科技创新
企业文化
党群建设
人力资源
社会责任
所属企业
招标采购
联系我们
信息公开
设计咨询
城市规划
设计咨询
工程咨询
城市规划
医疗建筑
养老建筑
文化观演建筑
酒店建筑
教育建筑
体育建筑
城市综合体
办公建筑
科研建筑
海外建筑
生物实验
工业工程
机场物流
能源环境
室内设计
景观设计
城市规划
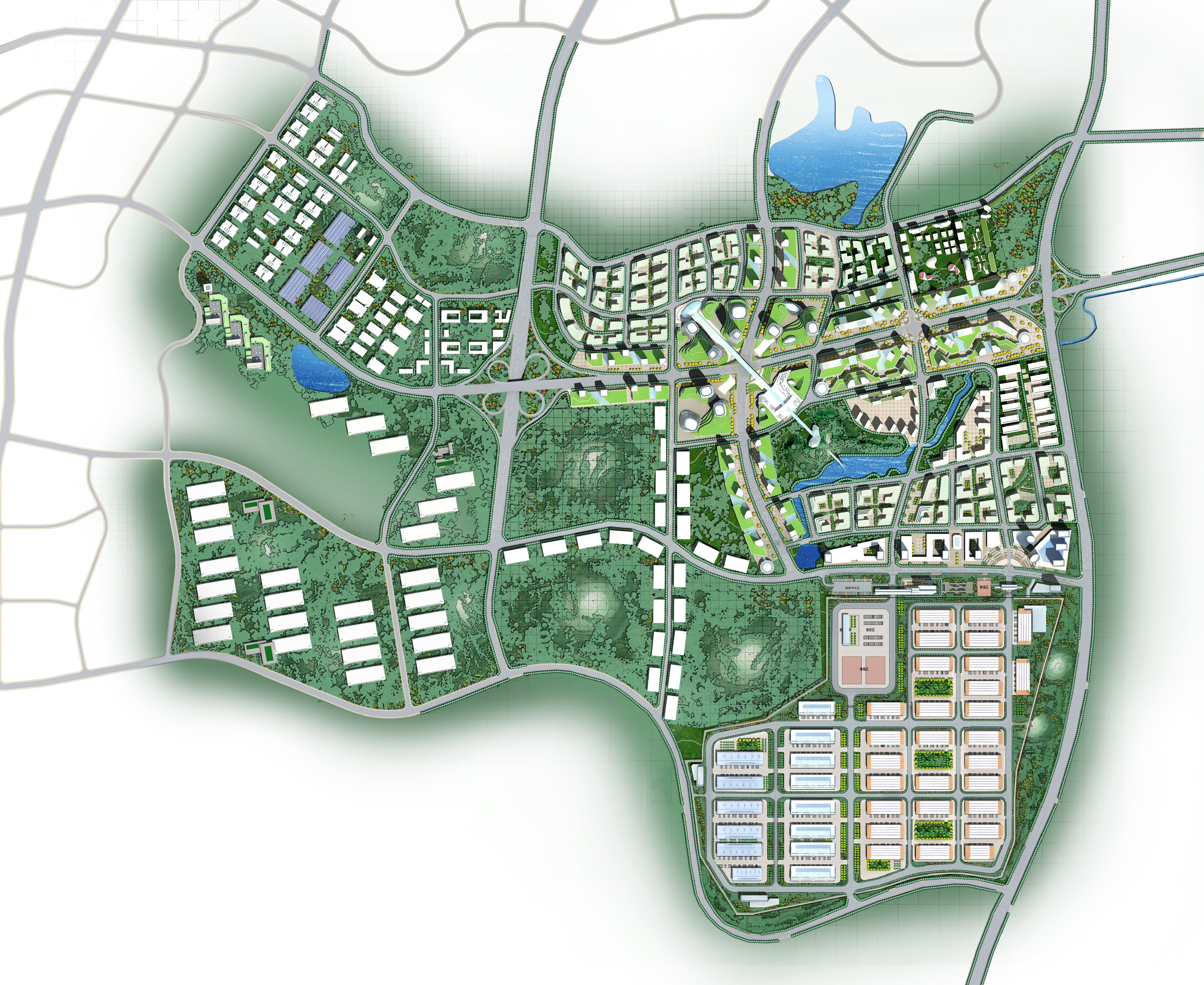
贵州云谷发展规划及城市设计
发布时间:[2019-01-25]
文章来源:
【
大
中
小
】
用地规模:
11.45
平方公里
设计时间:
2014
年
项目地点:贵州省贵安新区
开元(中国)一站式服务平台-KY.COM
|
ky体育
|
华体会官方网页版
|
开云·官方版网站登录入口
|
leyu
|
333体育平台登录官网(中国)官方网站
|
leyu乐鱼(中国)体育官方网站
|
开云app登录入口
|
乐鱼网页版
|